
产品名称:智能广告门系统
开门方向
1)右开门(开门顺时针转) 朝着外面开门,固定柱放 在左边。 |
2)左开门,(开门逆时针转) 朝着里面开门,固定柱放在左边。 |
3)右开门,(开门顺时针转) 朝着里面开门,固定柱放右边。 |
4)左开门,(开门逆时针转) 朝着外面开门,固定柱放在右边。 |
控制板上拨到开关用于选择左/右开门,开门方向是指:
1、左开门:开门时,门绕着支撑立柱逆时针转动。
2、右开门:开门时,门绕着支撑立柱顺时针转动。
开门方向,出厂时已根据客户需求设定,除了确实需要改变的,请勿随意调动,影响正常使用。
开门方向调整涉及:
1、拨动开关设置,见控制板上的拨到开关
2、限位调整,见调整说明
3、磁力锁铁块和磁力锁的安装位置调整
安装主要步骤:
同时购买左开门和右开门的,请将门框、立柱归类放好
1、布线
2、支撑立柱(高)安装固定
3、门体安装固定
4、门宽拉伸固定
5、另一根柱子(矮)安装固定
6、接线
7、通电前检查
8、通电运行
9、调整
布线图
![]() | ![]() |
开关电源:220V线RVV3*1.5,从主立柱底部直接穿到顶部开关电源这里,火线接L,零线接N,地线接地。主板输入电源+24V接开关电源+V,主板输入电源GND接开关电源-V。
安装说明:
注意事项:
!安装时严禁改变电动门的结构,安装不正确将直接导致电动门不能正常工作,严重时将损坏设备。
1、牢固:门的支撑立柱为主要承力部件,安装时必须保证牢固受力,必要时打预埋;可采用M12X100膨胀螺丝固定。
2、找平:门的支撑立柱一定要找平,垂直地球(不一定是垂直地面),立柱固定歪了,会出现甩门现象,即门在某个角度停不住,受到地球引力老向一个方向转,引起固定门的螺丝受力不均匀断裂,门运转故障,一会儿不到位,一会儿又过头。
3、装门体:装门前,先把立柱顶部的盖板卸下来(拧开螺丝)
4、拉伸:如需要调整门宽的,把门框角上螺丝松开,均匀拉伸,宽度定位后锁紧螺丝,把配套的栅栏条固定。
5、对齐:另一根立柱固定前,要检查磁力锁和对应的铁块是否对齐,即高低位置是否错位?接触面是否歪斜?是否缝隙大?保证磁力锁和铁片的接触面对齐吻合,吸附效果才不会变差或
失效。可适当调整磁力锁铁片不要固定得太紧。
接线说明
1、电气部分接线时,严禁带电操作。
2、外置电源箱要接地线,即输入220V的交流电要接入火线,零线和地线,保证安全。
3、通电前,要检查24V、电磁锁、灯箱的线没有接反、短路方可上电。直流24V电源正负极接反,将造成设备损坏。
4、电机接M+,M-,出厂时已经接好,不要擅自改动。
5、关于门禁接线:
1)通过查阅门禁说明书,找到门禁设备的NO和COM两个端子,引线到门禁控制板对应的NO和COM端子即可实现开门控制。
2)外接门禁设备可以自行供电,一体机门禁也可以从电动门控制板上取电(12V),找到门禁设备的12V和GND端子,接线到门控制板上开门控制信号对应的12V和GND。
3)使用开门按钮的,按钮的两根线(不分正负)也是引线到门控制板的NO和COM端子,即可实现开门控制。
通电说明:
控制板上直流24V电源正/负极接反,将造成设备损坏。
1、门体安装和接线完成后,先不要通电,先检查控制板上:电源24V,灯箱,电磁锁的接线有没有接反或短路。
2、先不要插门禁端子,接通电源,通道门进入待机状态,待机状态下控制板的数码管显示当前时间。
3、按一下遥控器,查看运作情况是否正常
开门→开门缓冲→到位保持→关门→关门缓冲→锁门
4、断电,插上门禁端子,送电,查看门禁使用是否正常
开门→开门缓冲→到位保持→关门→关门缓冲→锁门
调整说明:如果出现关门不到位(或撞门),开门不到位(或过头)
(一)首先,限位检查
1、关门限位检查
把门关到位(磁力锁吸住),分左右开门不一样,核对磁钢在限位板的位置,并观察控制板上位置指示灯两颗LED灯是否亮,如异常,微微移动磁钢位置。
2、开门限位检查
把门开到位(一般指开门90度),分左右开门不一样,核对另外一颗磁钢在限位板的位置,观察控制板上位置指示灯另外两颗LED灯是否亮,如异常,微微移动另一颗磁钢位置。
磁钢的位置,是可以用手移动的,一颗负责开门限位,另一颗负责关门的限位,按表格要求分别调整。
磁钢有极性,虽然两面都能吸住,但装反了,位置指示灯也不亮。
限位位置调试
A、先用手将门推到关闭位置
B、霍尔元件的位置见下图
| ![]() |
注意:四个黑色的霍尔元件,电路板上标号分别为Q1、Q2、Q3、Q4
A、调整磁钢在圆形片的位置
B、让磁钢吸附到圆形片底部,对准电路板上的黑色。
开门方式 | 关门到位 | 开门到位 | ||
磁钢应对准 | 位置指示灯(亮) | 磁钢应对准 | 位置指示灯(亮) | |
左开门 | Q3、Q4中间 | LED3、LED4 | Q1、Q2中间 | LED1、LED2 |
右开门 | Q1、Q2中间 | LED1、LED2 | Q3、Q4中间 | LED3、LED4 |
注意:a、磁钢有极性要求,当磁钢在Q1正上方时,控制电路板上的磁钢位置指示灯LED1亮;当磁钢在Q4正上方时,控制电路板上,磁钢位置指示灯LED4亮;如果不亮,请将磁钢翻面安装; b、磁钢位置指示灯LED1、LED2、LED3、LED4参见数控板说明图 | ||||
调试
A、调整反推电流
设置P-06,出厂值为65,即设置电机工作电流为0.80A;
如果电机遇阻不反转,则说明电机电流设置过大,须把P6值减小;
如果电机工作异常且LED数码管显示“H8”报警,则须把P-06值增大
B、如关门不到位,可加大P-03或P-02值
C、如关门缓冲速度过快,可减小P-02值
D、如开门不到90度,可加大P-05或F-02值,反之减小P-05或F-02值
控制器参数说明
电动门参数调整采用4位LED数码管显示,三个按键用于
设置参数,拨动开关用于选择左/右开门,跳线选择开门控制信号输入是继电器还是电压方式,各指示灯指示电源是否正常以及限位磁钢的位置。

控制板菜单说明 | |||
数码显示 | 功能 | 默认值 | 备注描述 |
P-01 | 关门速度 | 6 | 1-9档可调 |
P-02 | 关门刹车、缓冲速度 | 3 | 1-9档可调 |
P-03 | 关门到限位后的延时工作时间 | 0.8 | 0.3-9.9S可调(该参数作用迫使门关到位,若门关不到位,则增大该时间) |
P-04 | 5 | 1-99S可调 | |
P-05 | 开门到限位后的延时工作时间 | 0.5 | 0.3-9.9S可调(若门开不到位,则增大该时间) |
P-06 | 电机堵转阀值调节 | 65 | 20-99可调,(请注意:此参数非堵转电流参数,根据负载适当调整此参数) |
P-07 | 反推门响应时间 | 0.5 | 0.1-9.0S可调(当关门遇到反推时,延时多长时间执行反方向移动的动作) |
P-08 | 开门方向选择 | 3 | 1左开门;2右开门;3由外部拨码开关选择; |
P-09 | 关门位置检测 | 2 | 若=1 则门未在关门限位位置时,自动启动工作,直到关门完成; 若=2 则不自动启动,需要手动启动; |
F-01 | 开门速度 | 8 | 1-10档可调 |
F-02 | 开门刹车、缓冲速度 | 3 | 1-9档可调 |
F-03 | 反推门灵敏度设置 | 4 | 1-5档可调,数值约大,灵敏度越高; 若正常关门时,门停止或反转,且数值显示“H8”,则减小改值,若减小后仍显示“H8”,需增大P6值; |
F-04 | 厂家参数设置 | 00 | 无特殊情况及厂家允许,误进行该项参数设置,否则将造成工作异常; |
F-05 | 恢复出厂设置 | 55 | 设置为66后确定,数码管显示“EN”则代表恢复出厂出厂设置成功; |
F-06 | LED灯控制 | 1 | 1、LED强关;2、LED强开;3、LED定时打开或关闭; |
F-07 | 17:00 | 上下键调整时的设置,确定后自动跳转分的设置; | |
F-08 | LED灯开“分”的设置 | 17:00 | 上下键调整分的设置;确定后退出; |
F-09 | LED灯关“时”的设置 | 9:00 | 上下键调整时的设置,确定后自动跳转分的设置; |
F-10 | LED灯关“分”的设置 | 9:00 | 上下键调整分的设置;确定后退出; |
F-11 | 时间校对“时”的设置 | 上下键调整时的设置,确定后自动跳转分的设置; | |
F-12 | 时间校对“分”的设置 | 上下键调整分的设置;确定后退出; | |
对码设置 | 对码键触发,数码管显示“LEN”,等待遥控器学习,数码管倒计时H5~~H3~~H1退出,对码成功; | ||
清除设置 | 长按对码键8S后,数码管显示“----”清除成功; | ||
一、产品特点:
低功耗,静态功率10W,工作最大功率60W;
超静音,工作时噪音低于50 db;
支持多种信号输入,继电器信号,电压信号(5-24V);
电机过流、过载、短路保护;
智能遇阻、推门反转保护;
电机电流、推力、速度精确调节;
磁感应限位,防潮防尘;
产品型号 | SSGGM |
适用范围 | 小区,工厂人行通道,非机动车通道 |
开门角度 | 90 |
电源需求 | DC24V 6A |
额定功率 | 35W |
静态功率 | 10W |
开/关门速度 | 1-9档可调(对应开门时间10-3S) |
开门保持时间 | 1-99秒 |
运行环境温度 | -10℃~50℃ |
运行环境湿度 | 30%~50%(无结露) |
运行环境大气压 | 700hPa~1060hPa |
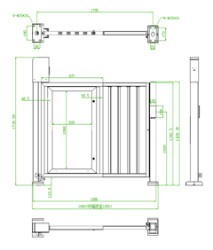
外形尺寸 |
序号 | 名称 | 序号 | 名称 |
1 | 电机罩 | 9 | 伸缩杆下固定螺丝 |
2 | 主立柱 | 10 | 伸缩杆组件 |
3 | 广告玻璃 | 11 | 副立柱地脚盖 |
4 | 缓冲垫固定板 | 12 | 副立柱 |
5 | 主立柱地脚盖 | 13 | 刷卡盒 |
6 | 面框下旋转销 | 14 | 伸缩杆上固定螺丝 |
7 | 方通框体 | 15 | 面框上插销 |
8 | 广告面框 |
尺寸参考图
|
|
状态显示说明
数码管显示 | 对应的状态 | 状态说明 |
“12:12”显示时间 | 待机状态 | 关门停机、未启动工作时的等待状态 |
“H-1” | 开门 | 启动开门、开门高速过程的状态 |
“H-2” | 开门刹车、缓冲 | 到达开门缓冲限位位置,刹车、缓冲的状态 |
“H-3” | 开门到限位 | 到达开门限位位置的状态 |
“H-4” | 开门保持 | 到达开门限位位置后,停门保持等待状态 |
“H-5” | 关门 | 开门保持延时时间结束,启动关门、关门高速过程的状态 |
“H-6” | 关门刹车、缓冲 | 到达关门缓冲限位位置,刹车、缓冲的状态 |
“H-7” | 到达关门限位位置的状态 | |
“显示时间” | 待机状态 | 关门到位、延时工作结束后,返回待机状态 |
“H-8” | 电机驱动电流过大,或遇阻 | 如果开门或关门时电机驱动电流过大,或遇阻、遇推门反转时,数码管显示“H8” |
“H-9” | 关门过程中遇开门信号 | 如果关门过程中,有开门控制信号或红外防撞光电开关信号,则显示“H9”,随后开门 |
常见故障及排除
故障现象 | 故障判断 | 处理措施 | |
不工作,且5V电源指示灯和数码管不亮 | 用万用表检查电路板接线端子上“INPUT”两个点是否有24V电压 | 无24V | 1、检查、更换24V电源 2、检查、更换连线 |
有24V | 更换电路板 | ||
不工作,数码管显示“H-08” | 设置P-06参数,加大电流检测值,重新启动工作;或增大F-03,降低灵敏度检测 | 问题解决 | 结束 |
故障依旧 | 1、 更换电机 2、 更换电路板 3、 断开门到摇臂的连接,检查门是否卡阻 | ||
开门不到位 | 调整磁钢位置,或设置P-05增大,或设置F-02增大 | ||
开门无缓冲 | 调整磁钢位置,或设置F-02减小 | ||
关门不到位 | 调整磁钢位置,或设置P-03增大,或设置P-02增大 | ||
关门无缓冲 | 调整磁钢位置,或设置P-02减小 | ||
锁门 | 用万用表测量电路板接线端子上“LOCK”的两个点是否有12V电压 | 有12V | 1、 更换门锁 2、 检查、更换连线 |
无12V | 更换电路板 | ||
装箱清单
序号 | 零部件名称 | 单位 | 数量 | 备注 |
1 | 主立柱组件 | 套 | 1 | |
2 | 副立柱组件 | 套 | 1 | |
3 | 门框组件 | 套 | 1 | |
4 | 伸缩杆连接件 | 根 | 4 | |
5 | 主立柱地脚盖组件 | 套 | 1 | |
6 | 副立柱地脚盖组件 | 套 | 1 | |
7 | M4*10自攻螺丝 | 个 | 16 | |
8 | 遥控器 | 个 | 2 |